Portes Ouvertes

PRIMEA vous invite sur chantier à Castets (40), les 24 & 25 avril 2026 et à Sorigny (37), les 25 & 26 avril 2026

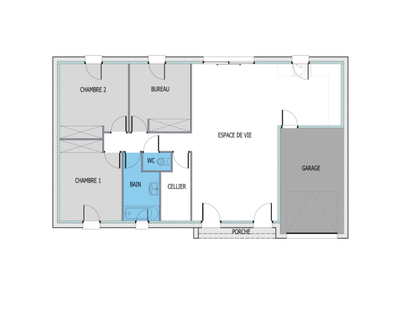
ASINARA 2 maison de plain-pied de 3 chambres avec un garage

Vous serez séduits par cette maison contemporaine qui se distingue par son porche en façade et ses enduits bi-ton personnalisable. Elle vous accueille dans un très bel espace de vie de plus de 42 m² très lumineux grâce à ses nombreuses ouvertures. La cuisine ouverte est très fonctionnelle puisqu’à la fois ouverte sur le séjour et accolée au cellier. L’espace nuit est composé de trois chambres avec tous les rangements nécessaires ainsi que d’une salle de bain et des wc séparés. Le plus de cette maison est sans nul doute son garage intégré. Pour vous assurer un confort de vie et conformément à la RE2025, nous avons choisi un mode de chauffage PAC avec plancher chauffant, volets roulants électriques avec coffre intégré + gestion crépusculaire. Prix hors fourniture et pose : des appareils sanitaires (sauf système de chauffage et d'eau chaude sanitaire), du carrelage et de la faïence, des revêtements de sol dans les chambres. Hors décoration et aménagement intérieur et peinture. Hors raccordements, frais de notaire et dommage ouvrage.

83 m2

3 ch

1 salle de bain

1 garage

Nous contacter pour cette maison

Plan(s) de la maison ASINARA 2

Plan (maison 858)
Consultez notre guide
Découvrez tous nos équipements Primeâ

Découvrez tous
nos équipements Primeâ

De la cuisine à la salle de bains, Primeâ s'engage à vous donner le meilleur rapport qualité/prix. Nos équipements sont sélectionnés et testés parmi des marques de fabricants européens, pour vous garantir les meilleures performances et innovations dans leur domaine. Nos plans ultra fonctionnels ainsi que notre méthode constructive répondent à un seul objectif : la qualité au juste prix !

En savoir plus

Les + de la maison ASINARA 2

Version prête à carreler

Version prête à carreler


Terrassement

Charpente

Couverture

Menuiseries extérieures et intérieures

Toute la maçonnerie

Les enduits de façade

Doublages, cloisons, plafonds et isolation

Distribution électrique complète (y compris VMC et chauffage)

Distribution plomberie complète (y compris ballon d’eau chaude)

Réalisation de la chape

Fourniture et pose du carrelage et de la faïence

Fourniture et pose des appareils sanitaires

Cuisine aménagée


Version prête à décorer

Version prête à décorer


Terrassement

Charpente

Couverture

Menuiseries extérieures et intérieures

Toute la maçonnerie

Les enduits de façade

Doublages, cloisons, plafonds et isolation

Distribution électrique complète (y compris VMC et chauffage)

Distribution plomberie complète (y compris ballon d’eau chaude)

Réalisation de la chape

Fourniture et pose du carrelage et de la faïence

Fourniture et pose des appareils sanitaires

Cuisine aménagée


Mais au fait on parle, on parle, mais avez-vous pensé
à commencer votre projet ?

Les services à la carte Primeâ votre contructeur de maison

Les rendez-vous autrement

Les rendez-vous autrement

" Pas de stress ", va devenir votre nouveau credo ! Oubliez le décor très officiel des bureaux classiques, et venez à notre rencontre pour une immersion dans le showroom PRIMEA.


En voir plus
VILLADIM FINANCE : Une expertise financière via une plateforme

L’accompagnement au financement

L’une des forces du constructeur est qu’il s’inscrit dans le cercle du groupe Villadim, qui met à disposition une plateforme de financement et d’échange de documents appelé Villadim Finance.


En voir plus
Les équipements PRIMEA

Les équipements PRIMEA

Nos équipements sont testés et sélectionnés parmi des marques de fabricants européens, pour vous garantir les meilleures perfomances dans leur domaine.


En voir plus
Les visites virtuelles

Les visites virtuelles

Vivrez l'expérience 360° de nos visites virtuelles qui vous permettent de dépasser les barrières physiques et vous rapproche un peu plus de votre future demeure.


En voir plus
A chacun sa version

A chacun sa version

Faire construire une maison pas chère devient possible ! PRIMEÂ propose différentes versions et vous offre l'opportunité de gérer vous-même une partie des travaux et d'alléger votre budget.


En voir plus

Visites virtuelles 360°

Découvrez nos visites virtuelles 360° HD et explorez l’intérieur de nos maisons modernes. Naviguez de pièce en pièce, appréciez les volumes, les aménagements et les finitions de chaque espace. Une expérience immersive qui vous permet d’imaginer votre future maison neuve, depuis chez vous.

Toutes les visites virtuelles
Visites virtuelles 360°
PA1702A_ASINARA_83_AVANT.jpg

Cette maison vous intéresse ?

Pour estimer le coût de construction de ce projet de maison, plus de renseignements ou prendre rendez-vous, remplissez le formulaire ci-dessous

Les champs marqués(*) sont obligatoires.